物件番号 111 - 北上市更木1地割39番NEW
掲載日:2025年12月12日
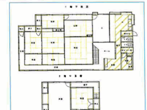
空き家の状況
クリックすると拡大表示されます。
| 物件番号 | 111 |
|---|---|
| 区分 | 売却 |
| 所在地 | 北上市更木1地割39番 |
| 売却価格 | 7,096,000円 |
| 都市計画 | 非線引き |
| 建ぺい率/容積率 | 70%/200% |
| 地目 | 宅地 |
| 地勢 | 平坦 |
| 接道 | 西側:県道幅員8.7m 接面42.0m 南側:私道幅員4.0m 接面2.0m |
| 土地面積 | 1410.09m2 |
| 建物面積 | 209.85m2 |
| 建築年月 | 不明 |
| 構造・階層 | 木造亜鉛メッキ鋼板葺き2階建て |
| 間取り | 9DK |
| 駐車場 | 有 |
| 設備 | 上下水道、電気、給湯器、水洗トイレ |
| 家屋の状態 | 未登記部分あり 車庫は畑(別筆)に所在すると思われ、本物件に含みません |
| 周辺環境 | JR東北本線村崎野駅 …5.4km 北上市立更木小学校 …1.4km 北上市立北上北中学校…3.6km |
| 引渡し | 現状有姿 相談 |
建物・周辺写真
写真はありません。

